Bay Harbor is experiencing an exciting period of growth, with several new residential projects bringing fresh design, modern amenities, and expanded living options to our community. Village Heights, Lakeview, The Summit Over Bay Harbor, and Sunset Ridge each offer something a little different, but all share a commitment to quality, lifestyle, and the beauty of Northern Michigan. Here’s a closer look at what’s coming.

Village Heights at Bay Harbor: A Modern Take on Bay Harbor Living

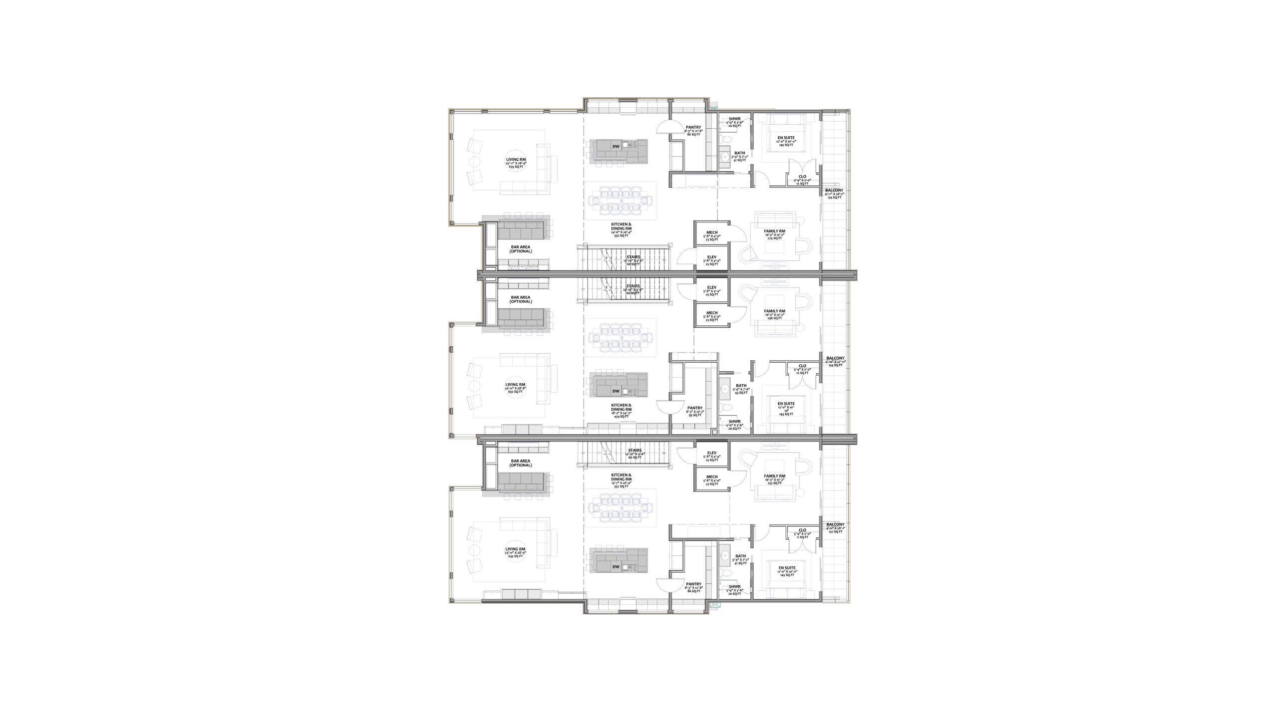
Village Heights introduces a style of architecture that feels new for Bay Harbor. A clean, contemporary look inspired by coastal design trends seen in places like California and Florida. Developer Jeff Elhart shared that the vision behind the project was to “highlight the culture of Bay Harbor while taking a step into modern architecture,” creating something fresh that still honors what makes this community special.

What stands out immediately is the focus on effortless, modern living. Elhart noted that the team designed Village Heights around the way people truly live in Bay Harbor today: “GEM cars and NEVs have become the most fun, popular, and efficient way of transportation here, so we wanted to incorporate that into the design by providing a separate NEV-only garage for each owner.

The development sits just a short walk or GEM ride from the Village, and its elevated site offers some of the best views in all of Bay Harbor. Floor plans range from walk-out first-floor units to second-floor residences with a lofted fourth bedroom, to penthouses with private rooftop terraces and elevators. Storage was also a major priority, with additional options available at the nearby CarPark for vehicles, boats, and seasonal toys.

Elhart emphasizes that the project was designed to appeal to a wide range of owners: “Young families, retirees, and everyone in between can find a floor plan that fits their lifestyle.” Phase 1 is underway now, with Buildings 3 and 4 expected to be completed in spring 2027.

For more information, visit VillageHeightsatBayHarbor.com, contact Harbor Sotheby’s at 231-439-2000, or email info@harborsir.com.

Lakeview at Bay Harbor: Luxury, Simplicity, and Walkable Convenience

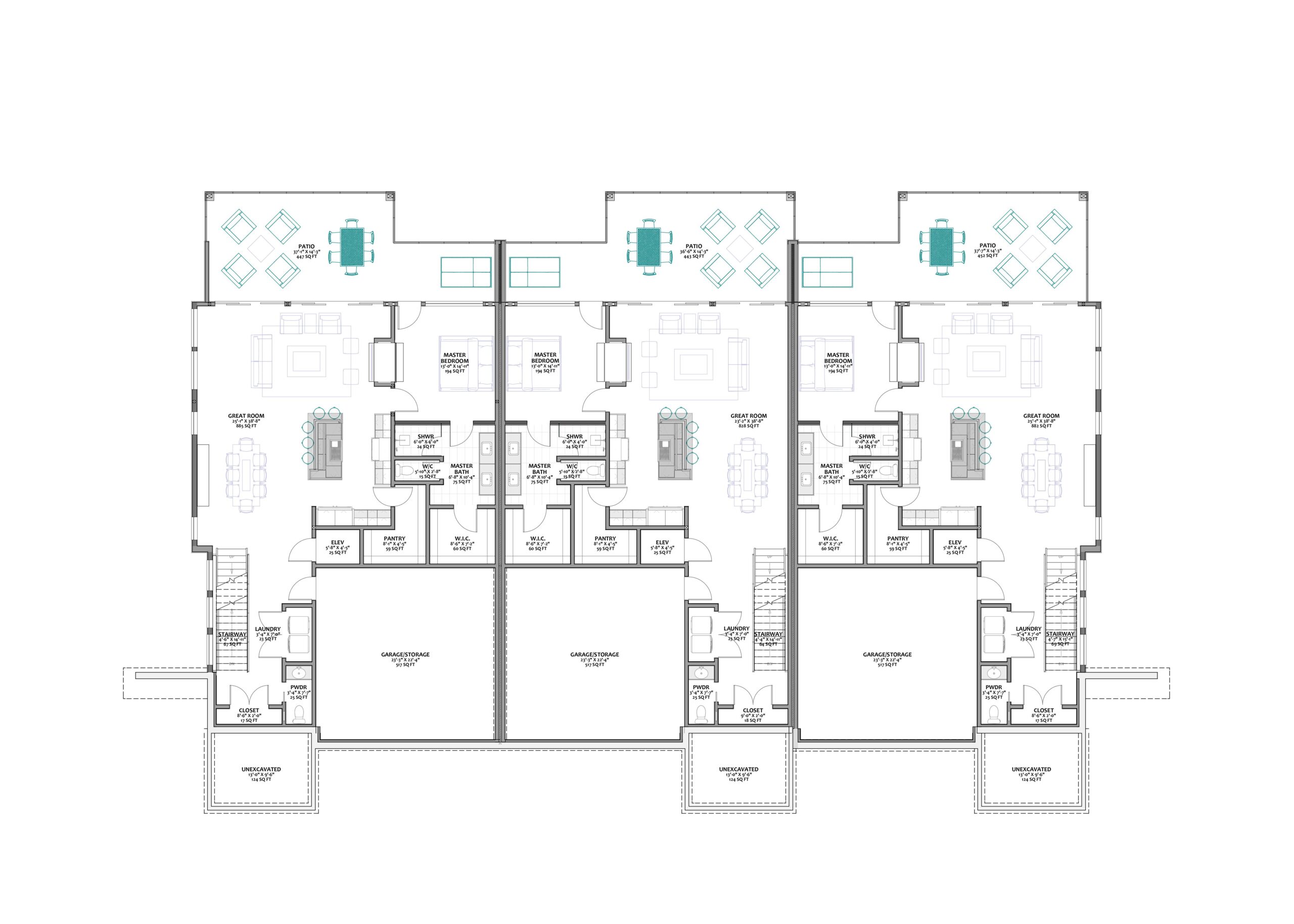
Lakeview, represented by Stephanie Jones of Jones North with Kidd & Leavy Real Estate, brings a fresh sense of light, space, and simplicity to the heart of Bay Harbor. Jones describes the development as “a modern luxury option designed for people who want single-level living, spectacular views, and the walkability that makes Bay Harbor so special.”

Each residence offers approximately 3,000 square feet on a single level, with private elevator access that opens directly into the home. Large, covered terraces face west toward the water, capturing evening sun and lake breezes. Interiors balance high-end finishes with thoughtful layouts designed for both entertaining and everyday comfort.

Lakeview, represented by Stephanie Jones of Jones North with Kidd & Leavy Real Estate, brings a fresh sense of light, space, and simplicity to the heart of Bay Harbor. Jones describes the development as “a modern luxury option designed for people who want single-level living, spectacular views, and the walkability that makes Bay Harbor so special.”

Each residence offers approximately 3,000 square feet on a single level, with private elevator access that opens directly into the home. Large, covered terraces face west toward the water, capturing evening sun and lake breezes. Interiors balance high-end finishes with thoughtful layouts designed for both entertaining and everyday comfort.

“The idea,” Jones explains, “was to combine the convenience of a condo with the space and privacy typically found in a custom home.” She also noted that many interested buyers love the location—within GEM distance of the Yacht Club, marina, dining, shops, and community events.

Building A is scheduled to be move-in ready in January 2026.

More information is available at LakeviewBayHarbor.com, or by contacting Stephanie Jones at 231-844-4410 or Stephanie@JonesNorth.com.

The Summit Over Bay Harbor: Elevated Luxury with Unmatched Views

Set high above the water, The Summit Over Bay Harbor offers some of the most impressive vistas of Little Traverse Bay. The architecture is modern and refined, with large windows and open layouts that make the lake the star of the show.

Residences span more than 5,500 square feet of interior space, plus a rooftop terrace of over 1,100 square feet designed for entertaining and sunset views. Homes include a customizable guest house, multiple private patios, a four-car garage, and a private elevator, along with high-end finishes and carefully considered details throughout.

The spacious primary suite, open-concept kitchen and living area, and additional en-suite bedrooms are designed to maximize comfort and privacy.

Owners also enjoy access to a private clubhouse featuring an infinity-edge pool and gathering space. Located near Petoskey, Charlevoix, Boyne City, and Harbor Springs, The Summit offers both seclusion and convenience in one of the most scenic settings in Northern Michigan.

To learn more, visit SummitOverBayHarbor.com, call 231-838-6700, or email patleavy@kiddleavy.com.

Sunset Ridge: Private Estate Living with Only One Lot Remaining

Bay Harbor Yacht Club, area development

Across from Bay Harbor sits Sunset Ridge, a peaceful, gated development made up of 14 estate homesites each positioned to take advantage of Lake Michigan views. The sites are generous in size, giving future homeowners room for courtyards, gardens, pools, and outdoor gathering spaces.

The appeal here is the balance of privacy and proximity. Sunset Ridge feels tucked away yet is just minutes from the Village and the nearby resort towns of Petoskey and Charlevoix.

Only one homesite remains, making this one of the last opportunities to build in this quiet, view-focused enclave.

For inquiries, contact Harbor Sotheby’s at 231-439-2000 or email info@harborsir.com. For more information visit https://www.sunsetridgebh.com/.

Looking Ahead

These new developments represent the next chapter in Bay Harbor’s evolution. They bring new architectural styles, expanded residential options, and more opportunities for families, seasonal residents, and future BHYC members to call this area home. And while each project has its own personality, they all reinforce the same idea: Bay Harbor remains one of the most vibrant and sought-after communities in Northern Michigan.